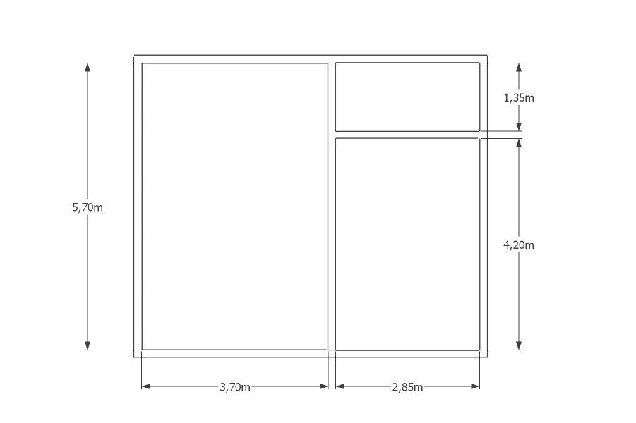
Após a medição in loco da laje é feito um croqui como da imagem abaixo:
Sempre que possível trabalharemos com os trilhos no menor sentido. O comprimento do trilho é a medida interna do comodo mais apoio, que deve ser no minimo de 5 cm, nesse caso adotaremos 10 cm e 7,50 cm.
Com isso os trilhos ficarão com:
- 3,90 m
- 1,50 m
- 3,00 m
Para quantificarmos os trilhos dividimos a largura do comodo pelo intereixo do trilho.
- 5,70 / 0,43 = 13,26 = 14 trilhos de 3,90 m
- 2,85 / 0,43 = 6,63 = 7 trilhos de 1,50 m
- 4,20 / 0,43 = 9,77 = 10 trilhos 3,00 m
Para somar a área total basta multiplicar a metragem linear total pelo intereixo da laje.
- (14 * 3,90) + (7 * 1,50) + (10 * 3,00) = 95,10 ml
- 95,10 * 0,43 = 40,89 m²
A quantidade de capa cerâmica é a metragem linear vezes 5 ou metragem quadrada vezes 11,65 e a quantidade de EPS é igual a metragem linear.
- 95,10 * 5 = 475,50 = 476 capas cerâmica
- 95,10 = 96 EPS
Para quantificar a malha POP dividimos a área total pela área útil da malha POP, desconsiderando a sobreposição que é feita na montagem.
A malha POP têm 6 m², porem consideramos 5 m².
- 40,89 / 5 = 8,18 = 9 malhas
Para fazer a sua relação de trilhos clique aqui.




Você precisa fazer login para comentar.